OUR SERVICES
DESIGN
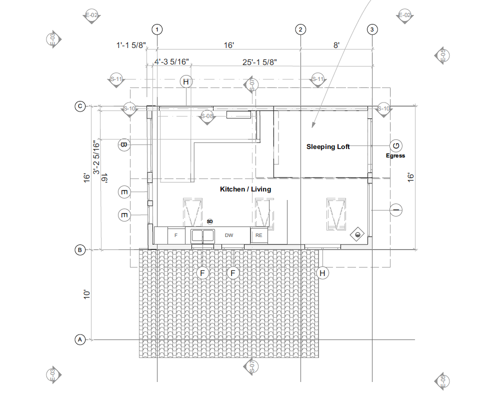
ADU’S/DADU’S
RESIDENTIAL NEW CONSTRUCTION
DEEP ENERGY RETROFITS
RESIDENTIAL REMODELS AND ADDITIONS
DESIGN
ADU’S/DADU’S
RESIDENTIAL NEW CONSTRUCTION
DEEP ENERGY RETROFITS
RESIDENTIAL REMODELS AND ADDITIONS